U ponudi

BREZOVICA - Desprimska - 165 m², novogradnja, visoki roh-bau - S2

Cijena: 500 000 €
Ispiši stranicu

Površina (m2)

165,59

Sobe

6

Spavaća soba

5

Kupaona

3

Detaljnije

Agencija ZAGREB MAX predstavlja Vam visoko kvalitetnu novogradnju u Brezovici.

Pogledajte priloženi tlocrt i video prezentaciju.

Za dodatne informacije kontaktirajte nas na 098 607 432 (Hrvoje).

Odlična mikrolokacija, dovoljno udaljena od gradske buke, mirna ulica, Desprimska. Neposredna blizina javnog prijevoza, osnovne škole, dječjeg vrtića te svih drugih sadržaja potrebnih za ugodan život.

U fazi izgradnje, dovršetak planiran sukladno dogovoru. Do travnja 2026. godine investitor planira dovesti do visokog roh-bau.

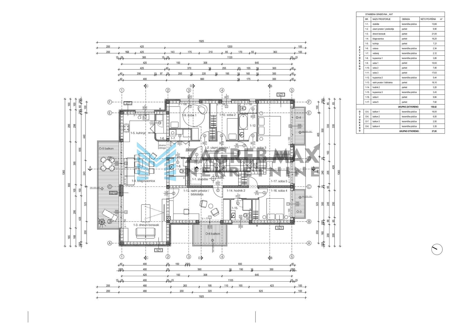
Stan oznake S2 se nalazi na katu te obuhvaća 158,62 m² stambene površine. Na katu se nalaze dnevni boravak, kuhinja, blagovaonica, pet spavaćih soba, tri kupaonice s WC-om, četiri balkona, radna soba, spremište i vešeraj.

Stan se sastoji od:
- dnevnog boravka, blagovaonice i kuhinje : 46,75 m²
- 1. spavaće sobe: 17,63 m²
- 2. spavaće sobe: 10,93 m²
- 3. spavaće sobe: 9,84 m²
- 4. spavaće sobe: 7,95 m²
- 5. spavaće sobe: 7,82 m²
- kupaonice s WC-om: 5,44 m²
- kupaonice s WC-om: 3,85 m²
- kupaonice s WC-om: 3,43 m²
- stubište: 13,66 m²
- hodnika: 3,20 m²
- radne sobe: 16,10 m²
- predsoblje: 9,90 m²
- ulazni prostor: 12,26 m²
- 1. balkona: 16,00 m²
- 2. balkona: 6,00 m²
- 3. balkona: 2,50 m²
- 4. balkona: 3,35 m²
- vešeraja: 2,12 m²

Po projektu je definirana jedna stambena jedinica, dok postoji mogućnost formiranja dvije zasebne stambene jedinice.

Prednji dio dvorišta je planiran kroz izgradnju 5 vanjskih parkirališnih mjesta. Površina tog dijela je cca 125 m².

U stražnjem dijelu dvorišta izgrađena je pomoćna zgrada površine 14 m² unutar koje je planirana ljetna kuhinja.

Površina stražnjeg dijela je cca 200 m² i moguće ga je urediti prema vlastitim željama.

U sklopu zgrade prodaje se stan oznake S1 koji se nalazi u prizemlju.

Moguće je kupiti oba stana.

• Uredno vlasništvo, 1/1

Kupac za predmetnu nekretninu plaća posredničku naknadu u iznosu 2% (+PDV) od kupoprodajne cijene. * Za navedenu naknadu agencija će isporučiti svu potrebnu kupoprodajnu dokumentaciju te izvršiti prijenos režija na novog vlasnika.

Za više informacija kontaktirajte nas na 098 607 432 (Hrvoje)


Pošaljite upit

Želite saznati dodatne informacije o ovoj nekretnini? Slobodno nas kontaktirajte putem ovog obrasca i naš agent će Vam se javiti u najkraćem mogućem roku (garantirano odgovaramo na sve upite):

Vaše ime

Kontakt broj telefona ili mobitela

Kontakt e-mail

Poruka

Pretraživanje

Površina u m2 Broj soba Dodatne opcije
Cijena u EUR Poništi

Arhiva prodanih

Ovdje možete vidjeti jedan dio arhive nekretnina koje smo uspješno prodali:

Pogledaj arhivu

Pogledajte i ove nekretnine

U ponudi

ŠALATA - Gajdekova - 3-sobni, svijetao, balkon, spremište, prostran

85 m2, 3 sobe

345 000 €

U ponudi

ZAPRUĐE - Vučetićev prilaz - 3-sobni, prostran, za adaptaciju

59,98 m2, 3 sobe

190 000 €

U ponudi

FINIDA – Segetska – 4-sobni, novogradnja, prostran, komforan, 2 balkon

109,68 m2, 4 sobe

395 000 €