U ponudi

BREZOVICA - Desprimska - kuća s dvije stambene jedinice

Cijena: 950 000 €
Ispiši stranicu

Površina (m2)

335

Sobe

12

Spavaća soba

9

Kupaona

6

Detaljnije

Agencija ZAGREB MAX predstavlja Vam visoko kvalitetnu novogradnju u Brezovici.

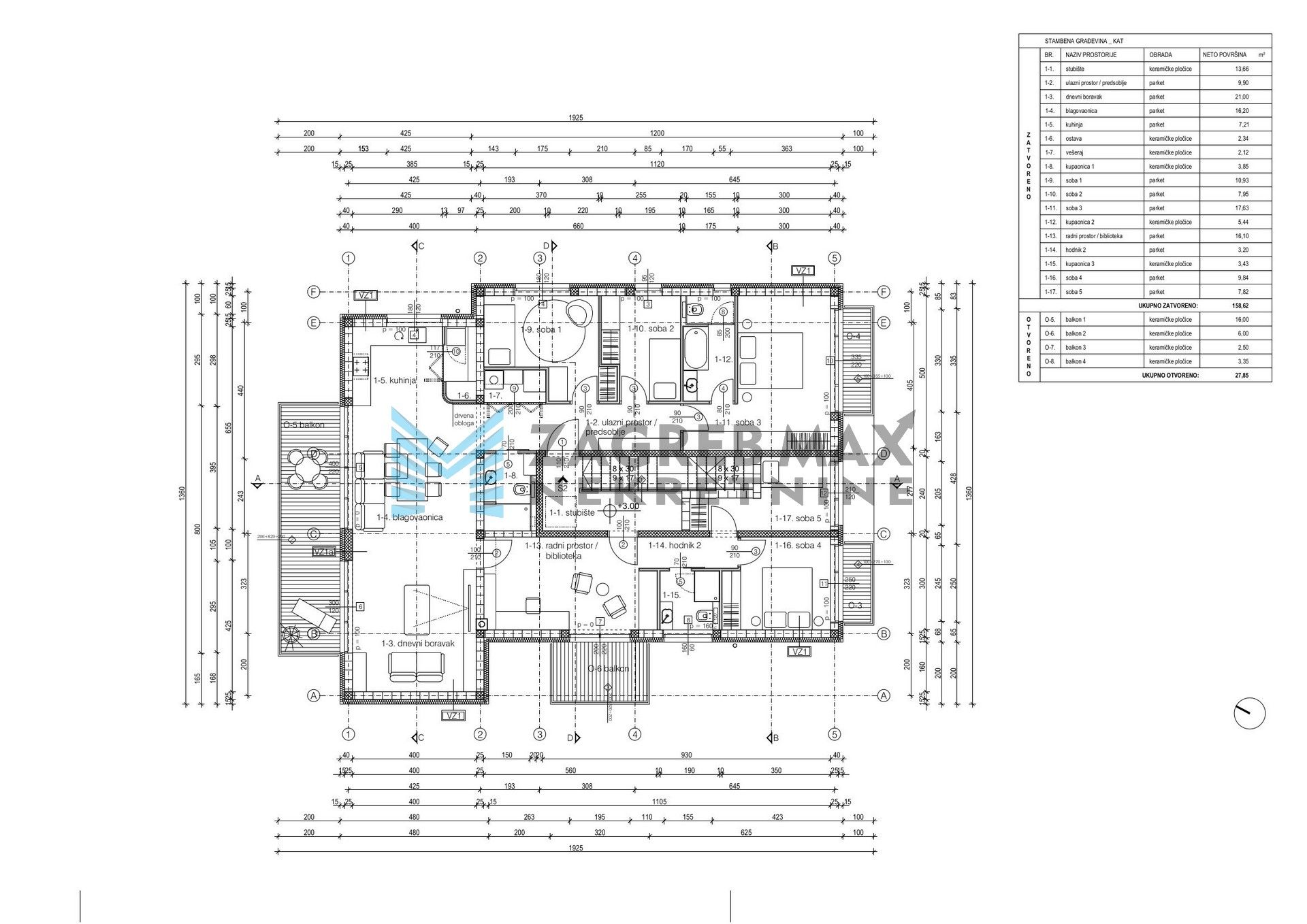
Pogledajte priloženi tlocrt i video prezentaciju.

Za dodatne informacije kontaktirajte nas na 098 607 432 (Hrvoje).

Odlična mikrolokacija, dovoljno udaljena od gradske buke, mirna ulica, Desprimska. Neposredna blizina javnog prijevoza, osnovne škole, dječjeg vrtića te svih drugih sadržaja potrebnih za ugodan život.

U fazi izgradnje, dovršetak planiran sukladno dogovoru. Do travnja 2026. godine investitor planira dovesti do visokog roh-bau.

Kuća se sastoji od prizemlja i prvog kata s ravnim krovom. Stan oznake S1 se nalazi u prizemlju te obuhvaća 157,78 m² stambene površine.

Stan S1 se sastoji od:
- dnevnog boravka, blagovaonice i kuhinje : 47,20 m²
- 1. spavaće sobe: 12,58 m²
- 2. spavaće sobe: 8,07 m²
- 3. spavaće sobe: 17,63 m²
- 4. spavaće sobe: 10,50 m²
- kupaonice s WC-om: 5,98 m²
- kupaonice s WC-om: 2,81 m²
- kupaonice s WC-om: 3,43 m²
- hodnika 1: 7,53 m²
- hodnika 2: 2,60 m²
- radne sobe: 16,10 m²
- predsoblje: 7,97 m²
- ulazni prostor: 12,26 m²
- natkrivene terase: 16,00 m²
- nenatkrivene terase: 16,00 m²
- natrivena mala terasa: 6,00 m²
- natkriveni ulaz: 6,83 m²

Stan oznake S2 se nalazi na katu te obuhvaća 158,62 m² stambene površine.

Stan S2 se sastoji od:
- dnevnog boravka, blagovaonice i kuhinje : 46,75 m²
- 1. spavaće sobe: 17,63 m²
- 2. spavaće sobe: 10,93 m²
- 3. spavaće sobe: 9,84 m²
- 4. spavaće sobe: 7,95 m²
- 5. spavaće sobe: 7,82 m²
- kupaonice s WC-om: 5,44 m²
- kupaonice s WC-om: 3,85 m²
- kupaonice s WC-om: 3,43 m²
- stubište: 13,66 m²
- hodnika: 3,20 m²
- radne sobe: 16,10 m²
- predsoblje: 9,90 m²
- ulazni prostor: 12,26 m²
- 1. balkona: 16,00 m²
- 2. balkona: 6,00 m²
- 3. balkona: 2,50 m²
- 4. balkona: 3,35 m²
- vešeraja: 2,12 m²

Po projektu je definirana jedna stambena jedinica, dok postoji mogućnost formiranja dvije zasebne stambene jedinice po etaži.

Prednji dio dvorišta je planiran kroz izgradnju 5 vanjskih parkirališnih mjesta. Površina tog dijela je cca 125 m².

U stražnjem dijelu dvorišta izgrađena je pomoćna zgrada površine 14 m² unutar koje je planirana ljetna kuhinja. Površina stražnjeg dijela je cca 200 m² i moguće ga je urediti prema vlastitim željama.

• Uredno vlasništvo, 1/1

Kupac za predmetnu nekretninu plaća posredničku naknadu u iznosu 2% (+PDV) od kupoprodajne cijene. * Za navedenu naknadu agencija će isporučiti svu potrebnu kupoprodajnu dokumentaciju te izvršiti prijenos režija na novog vlasnika.

Za više informacija kontaktirajte nas na 098 607 432 (Hrvoje)


Pošaljite upit

Želite saznati dodatne informacije o ovoj nekretnini? Slobodno nas kontaktirajte putem ovog obrasca i naš agent će Vam se javiti u najkraćem mogućem roku (garantirano odgovaramo na sve upite):

Vaše ime

Kontakt broj telefona ili mobitela

Kontakt e-mail

Poruka

Pretraživanje

Površina u m2 Broj soba Dodatne opcije
Cijena u EUR Poništi

Arhiva prodanih

Ovdje možete vidjeti jedan dio arhive nekretnina koje smo uspješno prodali:

Pogledaj arhivu

Pogledajte i ove nekretnine

U ponudi

D. DUBRAVA - Pepelnjakova - 3-sobni, za renovaciju, investicija

88,89 m2, 3 sobe

95 000 €

U ponudi

DOMASLOVEC - Krmica - kuća 246 m2, 2761 m2 zemljišta - INVESTICIJA

245,85 m2, 6 soba

850 000 €

U ponudi

IVANIĆ-GRAD - okolica - više poslovnih objekata

723,55 m2, 10 soba

450 000 €